The Cottage In Muskoka Blog

Muskoka Real Estate Listings

Search Listings

102 – 20d Silver Birch Court, Parry Sound, Ontario P2A 0A7 (29255055)

102 - 20d Silver Birch Court Parry Sound, Ontario P2A 0A7

1 Bedroom 1 Bathroom 800 - 899 sqft
Central Air Conditioning Forced Air Landscaped

$419,000

Maintenance, Common Area Maintenance, Water

$311.22 Monthly

1 Bedroom + Den, 1 Bathroom Main-Floor Condo for Sale in Parry Sound, located in the sought-after Silver Birch community and offering low-maintenance living. This main-floor condominium features an open-concept living and dining area, in-suite laundry and ample storage throughout. The primary bedroom includes a walk-in closet, while the den provides flexible space for a home office, guest room or additional living area. Flooring in the den was replaced in February 2026. A centrally located 4-piece bathroom completes the layout. Additional features include a forced-air natural gas furnace, central air conditioning, exclusive underground parking and a private storage locker making this an ideal lock-and-go option. Conveniently located minutes from downtown Parry Sound with quick access to Highway 400 and within walking distance to parks, a community garden and scenic views of the Seguin River. A great option for buyers seeking a Parry Sound condo offering main-floor convenience and low-maintenance living. (id:63952)

Property Details

MLS® Number X12699874
Property Type Single Family
Community Name Parry Sound
Amenities Near By Golf Nearby, Hospital, Park, Place Of Worship
Community Features Pets Allowed With Restrictions, Community Centre
Features Cul-de-sac, In Suite Laundry
Parking Space Total 1
Structure Patio(s)

Building

Bathroom Total 1
Bedrooms Above Ground 1
Bedrooms Total 1
Age 11 To 15 Years
Amenities Visitor Parking, Separate Heating Controls, Storage - Locker
Appliances Water Heater, Dishwasher, Dryer, Range, Stove, Washer, Refrigerator
Basement Development Unfinished
Basement Type Full (unfinished)
Cooling Type Central Air Conditioning
Exterior Finish Stucco
Fire Protection Smoke Detectors
Foundation Type Concrete
Heating Fuel Natural Gas
Heating Type Forced Air
Size Interior 800 - 899 Sqft
Type Apartment

Parking

Underground
Garage

Land

Access Type Year-round Access
Acreage No
Land Amenities Golf Nearby, Hospital, Park, Place Of Worship
Landscape Features Landscaped
Zoning Description R3

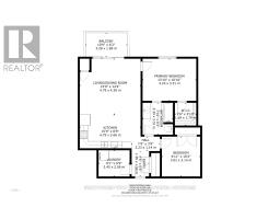
Rooms

Level Type Dimensions
Main Level Foyer 1.38 m x 1.99 m
Main Level Laundry Room 2.45 m x 2.06 m
Main Level Kitchen 4.79 m x 2.66 m
Main Level Living Room 4.79 m x 4.38 m
Main Level Primary Bedroom 4.23 m x 3.31 m
Main Level Bathroom 2.39 m x 2.51 m
Main Level Den 3.02 m x 3.14 m

Utilities

Wireless Available

https://www.realtor.ca/real-estate/29255055/102-20d-silver-birch-court-parry-sound-parry-sound

Contact Us

Contact us for more information

Generating Captcha

Terri Lynn Gibson
Salesperson

(705) 773-8076
terrilynngibson.com/listing/?input_agent_id=2049660
www.facebook.com/teamgibsonrealestate
www.instagram.com/teamgibsonrealestate

Royal LePage Team Advantage Realty
49 James Street
Parry Sound, Ontario P2A 1T6

(705) 746-5844
(705) 746-4766

Your Favourites

 

No Favourites Found